175 -177 Liebig Street, Warrnambool
Retail
Huge Central Retail Building
Falk & Co are pleased to present 175 – 177 Liebig Street, Warrnambool for lease.
A blank canvas, with an expansive glass shop front, surrounded by a plethora of national operators in Warrnambool's main retail precinct.
The property is ideal for retail, office, cosmetic, allied health, hospitality and more (STCA).
Key Leasing Features:
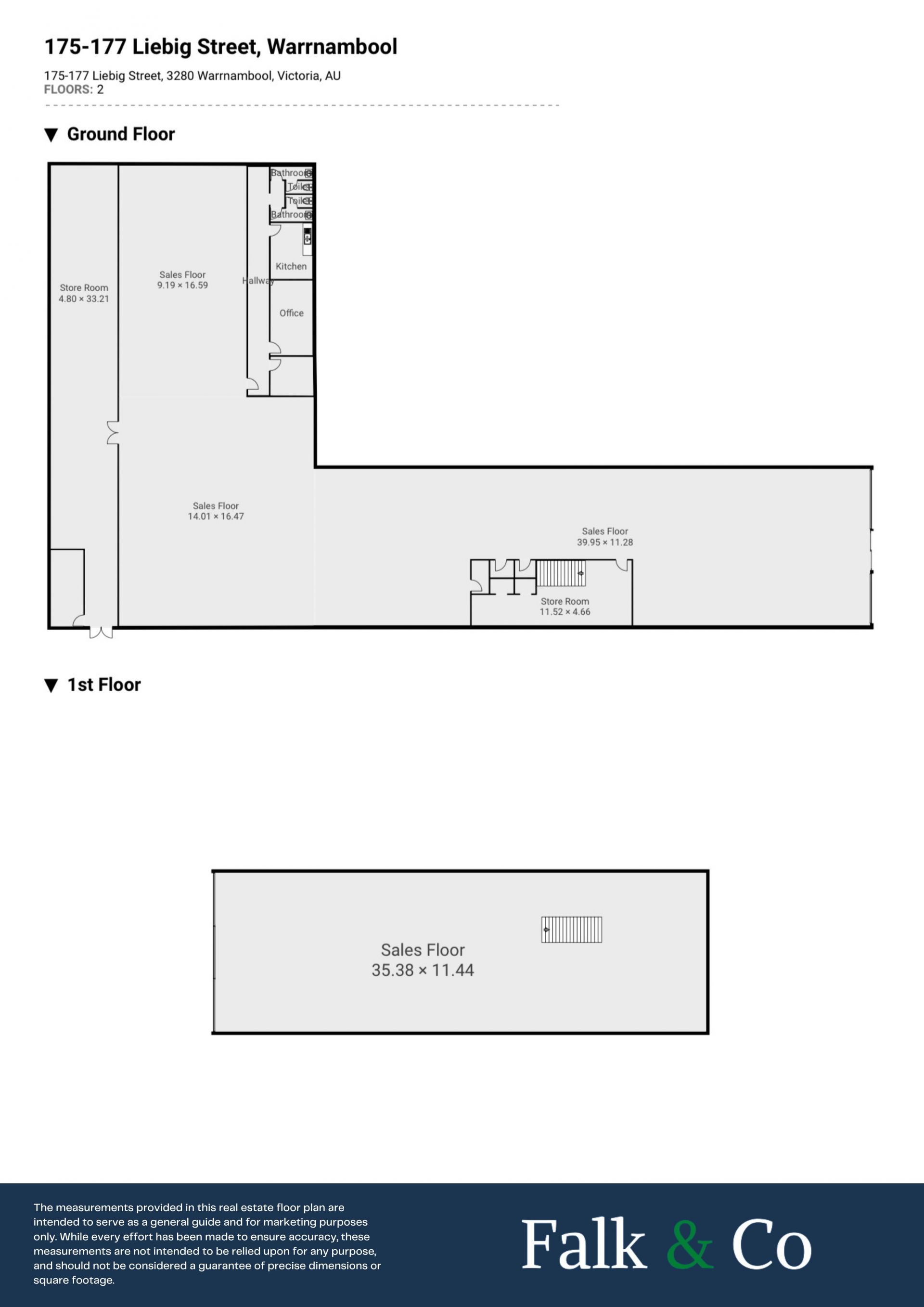
• Building area: 1396.52m2* over two levels.
• Rear access for deliveries with room to park at least Two (2) vehicles
• Male & Female toilets.
• Strong surrounding national tenants
• Zoning: Commercial 1
Outgoings
Warrnambool City Council $2950 per quarter
Wannon Water $530 per quarter
Insurance $14,500 per annum
A blank canvas, with an expansive glass shop front, surrounded by a plethora of national operators in Warrnambool's main retail precinct.
The property is ideal for retail, office, cosmetic, allied health, hospitality and more (STCA).
Key Leasing Features:
• Building area: 1396.52m2* over two levels.
• Rear access for deliveries with room to park at least Two (2) vehicles
• Male & Female toilets.
• Strong surrounding national tenants
• Zoning: Commercial 1
Outgoings
Warrnambool City Council $2950 per quarter
Wannon Water $530 per quarter
Insurance $14,500 per annum
